LEGALAND+猫MIYAKOJIMA(Aタイプ)
基本情報
賃料・初期費用
賃料153,000円
- 管理費・共益費
- 10,000円
- 敷金/礼金
- なし/なし
- 保証金
- なし
- 敷引・償却
- なし
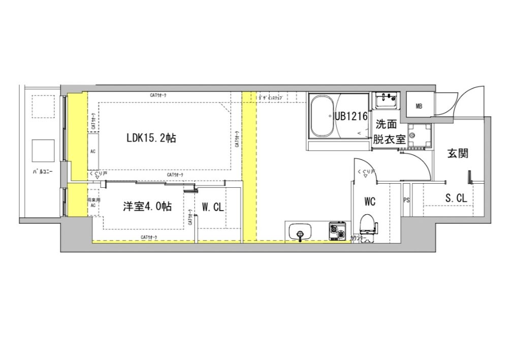
部屋情報
- 間取り
- 1LDK
- 専有面積
- 47.2㎡
- 向き
- 北東
- 建物種別
- マンション
アクセス
- 大阪メトロ谷町線/都島駅 徒歩9分
所在地
大阪市都島区高倉町1-5-7
ペット条件
猫のみ3匹
更新料
なし
住宅保険料/
住宅保険期間
24,000円/2年
設備
室内洗濯機置場,洗面所独立,フローリング,エアコン付き,バス・トイレ別,温水洗浄便座,浴室乾燥機,追い焚き風呂,ガスコンロ対応,コンロ2口以上,システムキッチン,駐輪場あり,バイク置場あり,エレベーター,宅配ボックス,敷地内ゴミ置場,バルコニー付,都市ガス,オートロック,TVモニタ付きインターホン,防犯カメラ,インターネット無料,シューズボックス,トランクルーム,ウォークインクローゼット
【こだわりポイント】
ペット専門ドクターによる健康サポート、ペットカメラ全戸備え付け、外出先でもエアコン操作
備考欄
こちらの物件は、上記2枚目画像のQRコードのフォームまた以下のURLからお問い合わせください。
LEGALAND⁺猫 MIYAKOJIMA 物件問い合わせフォーム – フォームに記入する
https://forms.office.com/r/nWHYU6N8nC
◆運営会社
株式会社LeTech
電話番号:06-6362-3113








































